4 Bedroom End Terrace Property for Sale

Spa Well Court, Whitby

Guide Price £280,000
  • End Terrace
  • 4 Bedrooms
  • 2 Bathrooms
  • At a glance

    • Added on: Wednesday 1st October 2025

    Property Details

    Ann Cordey Estate Agents are delighted to present High Tide a beautifully designed four-bedroom townhouse, perfectly positioned within the sought-after Spa Well Court development in Whitby.

    With its enviable central location, private parking, and generous outdoor space, this property is ideal as a holiday let, a weekend retreat, or a permanent home by the coast.

    Completed in 2019 and recently redecorated, High Tide showcases quality throughout, featuring oak internal doors, a stylish Roundel kitchen with integrated Zanussi appliances, and elegant Porcelanosa bathrooms.

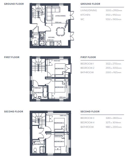
    The accommodation is spacious and thoughtfully arranged over three floors:

    Ground Floor: welcoming entrance hall, cloakroom/w.c., and a large open-plan kitchen/living/dining room with two sets of double doors opening onto the outside space.

    First Floor: two double bedrooms and a contemporary family bathroom fitted with shower-over-bath, wash basin, and w.c.

    Second Floor: two further double bedrooms and an additional modern shower room.

    Spa Well Court is an exclusive development just 200 meters from Whitby s vibrant town centre. Having the advantage of private parking in such a prime location makes this home truly special.


    Energy Performance Certificates

    Interested in this property?

    Arrange a Viewing Add to Shortlist or contact us 01325 488433 sales@anncordey.com Send us a message
    Selling your property with Ann Cordey
    • Established in Darlington for over 25 years
    • Pro-active, knowledgeable sales team
    • We truly care about our clients
    Book a free valuation
    An agent you can trust
    NAEA Propertymark Protected
    ARLA Propertymark Protected
    PRS Property Redress Scheme
    The Property Ombudsman

    Ann Cordey uses cookies to ensure you get the best experience on our website.Privacy Policy